REF: SU-9277709 | Catastro: 9277709 Solar urbano

SOLAR URBANO EN VENTA

Urbanización Astigi, Écija - Sevilla

a consultar
IVA no incluido

Características del Solar

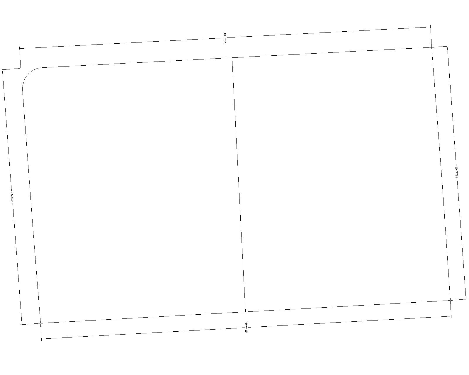
Superficie: 995 m²
Dimensiones: 25x40 m
Frente vial: 40 metros
Uso permitido: Residencial

Condiciones de Venta

Precio: A consultar
Financiación: Posible
Entrega: Inmediata
995 m²
Superficie
25x40 m
Dimensiones
40 m
Frente
Residencial
Uso

Estado de Urbanización

El solar se encuentra completamente urbanizado con todos los servicios disponibles:

Acceso asfaltado: Calle completamente urbanizada y asfaltada
Suministros: Conexiones para agua, electricidad y gas disponibles
Alcantarillado: Red de saneamiento conectada
Comunicaciones: Fibra óptica disponible

Descripción del Solar

Excelente solar urbano ubicado en la prestigiosa Urbanización Astigi de Écija, una zona en pleno desarrollo con gran potencial de revalorización.

Características principales:

  • Superficie total de 995 m² en parcela regular
  • Dimensiones de 25x40 metros - Forma rectangular
  • Frente vial de 40 metros con acceso rodado
  • Uso residencial permitido para vivienda unifamiliar
  • Servicios urbanizados en la vía pública
  • Orientación sur-este - Excelente insolación
  • Topografía llana sin desniveles importantes
  • Listo para construir - Sin trámites pendientes

Ubicación privilegiada:

Situado en la Urbanización Astigi de Écija, a solo 10 minutos a pie del centro histórico. Zona residencial consolidada con todos los servicios esenciales: colegios, centros de salud, supermercados y zonas comerciales.

Especificaciones Urbanísticas

Clasificación: Suelo Urbano
PGOU: Urbanización Astigi
Uso principal: Residencial
Tipología: Vivienda unifamiliar
Altura máxima: 2 plantas + bajo cubierta

Potencial de Inversión

Tipo construcción: Vivienda unifamiliar
Potencial revalorización: Alto
Construcción: Inmediata

Características del Terreno

  • Superficie total: 995 m²
  • Dimensiones: 25x40 metros
  • Forma parcela: Rectangular regular
  • Frente vial: 40 metros
  • Orientación: Sur-Este
  • Topografía: Llana
  • Servicios: Urbanizados
  • Referencia: SU-9277709

Condiciones de Venta

  • Precio: A consultar
  • Forma de pago: Negociable
  • Financiación: Posible
  • Escrituración: 30 días
  • Gastos notaría: Por cuenta comprador
  • ITP/AJD: Por cuenta comprador
  • Comisión agencia: 5% + IVA
  • Disponibilidad: Inmediata
Juan Gallardo

Juan Gallardo

Agente Inmobiliario

Especialista en solares y terrenos urbanos con más de 15 años de experiencia.

744 682 932

juan@gallardosol.com

Lunes-Viernes: 9:00-14:00 / 17:00-20:00

WhatsApp directo

Solicitar Información